Porzione di bifamiliare in vendita

Rimini, Via Del Tulipano - Lagomaggio
€ 450.000
4 locali 4 locali
150 Mq 150 Mq
2 bagni 2 bagni

Porzione di bifamiliare in vendita

Rimini, Via Del Tulipano - Lagomaggio

Descrizione annuncio

Rimini Zona Lagomaggio ,

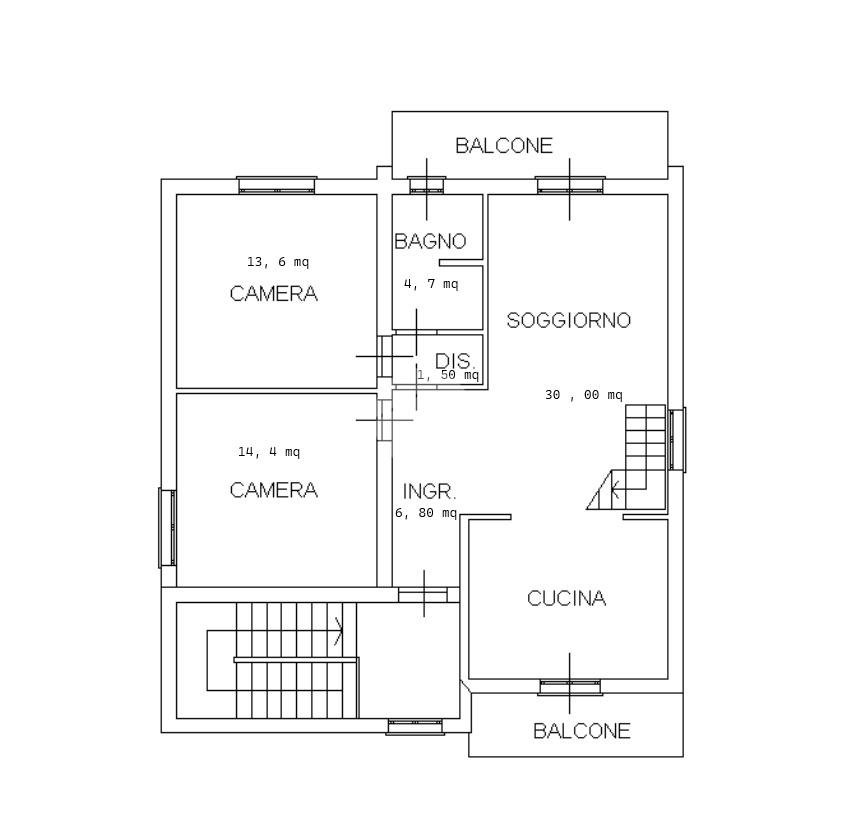
in una tranquilla e ricercata zona residenziale, proponiamo in vendita esclusiva un elegante appartamento situato in una porzione di bifamiliare, recentemente ristrutturato, che offre una perfetta soluzione abitativa su due livelli. L'immobile, dotato di ingresso indipendente, si distingue per la luminosità e la funzionalità degli spazi, progettati per garantire comfort e privacy.

L’appartamento si sviluppa al primo piano, dove troviamo un ampio ingresso che conduce a un soggiorno spazioso e luminoso, perfetto per momenti di relax, e a una cucina abitabile, ideale per pranzi e cene in famiglia. Completano il piano due camere da letto confortevoli e un bagno finestrato. Questo livello è arricchito da due balconi, uno accessibile dalla cucina e l'altro dalla zona soggiorno, che offrono un piacevole spazio esterno per godere dell’aria fresca e della tranquillità della zona.

Al piano mansardato si trova una zona riservata, che può essere adibita a terza camera, studio o zona jolly, a seconda delle necessità. Questo piano include anche un secondo bagno e una lavanderia, che ottimizzano ulteriormente gli spazi e ne aumentano la funzionalità.

L'appartamento dispone inoltre di uno spazio esterno privato, ideale per momenti di relax all’aperto, e di due garage di proprietà, che offrono ampio spazio per il parcheggio delle auto e per eventuali ulteriori necessità.

Ristrutturato con materiali di alta qualità, l’immobile rappresenta un'ottima soluzione per famiglie che cercano una residenza comoda, ben distribuita e situata in un contesto tranquillo, ma a breve distanza dai principali servizi.

Non perdere questa occasione!

Mostra tutto

Nelle vicinanze

Trasporto pubblico Trasporto pubblico
Rimini
Rimini
1,6 Km
Pascoli
Pascoli
350 m
Goldoni
Goldoni
360 m
Trasporto pubblico
2,5 Km
Ricariche auto elettriche Ricariche auto elettriche
Hotel Cristallo
440 m
Hotel Diplomat Palace
440 m
Eneldrive Bagno 72
550 m
Eneldrive Bagno 44
950 m
Eneldrive Tribunale
1,2 Km
Scuole Scuole
Scuole
520 m
Scuola Primaria "Michele Griffa"
690 m
Liceo Scientifico Albert Einstein
720 m
Scuola Primaria Boschetti-Alberti
760 m
ITTS “O. Belluzzi - L. Da Vinci”
860 m
Farmacia Farmacia
Farmacia
460 m
Chemia fort. Stefano G. Bianchi
550 m
Parafarmacia
710 m
Farmacia Bellariva
1,0 Km
Al Lido
1,1 Km
Ospedali Ospedali
Ospedale dei villeggianti
550 m
Ospedale Infermi Rimini
920 m
Supermercati Supermercati
Grilli
380 m
Coop
520 m
crai
640 m
da Diego
680 m
Conad
760 m
Negozi Negozi
Xsports
560 m
DeSpar
580 m
Negozi
880 m
SempreSemprini
1,1 Km
Flaminio
1,2 Km
Bar Bar
The old bull&bush
340 m
Long street bar
410 m
Soleluna
470 m
Blow Up disco
1,0 Km
Bar Milano
1,2 Km
Ristoranti Ristoranti
Poker
350 m
da Lele
350 m
Rimet 70
410 m
Joe's - Ristorante & Pizzeria
420 m
Libeccio
480 m
Mostra tutto

Caratteristiche

Rif.:
61156369
Piano:
1 di 1 (Piano su più livelli)
Box:
1
Balconi:
2
Camere da letto:
3
Arredamento:
Parziale
Mostra tutto
Prezzo Prezzo
€ 450.000
Rata mutuo Rata mutuo
€ 2.121 / mese
Spese annue Spese annue
€ 0
Proponi il tuo prezzoProponi il tuo prezzo

Classe Energetica

D
D
D
D
D
D
D
D
D
EP globale non rinnovabile:
175.00 kW h/m² anno
EP globale rinnovabile:
175.00 kW h/m² anno
EP invernale del fabbricato:
EP estiva del fabbricato:
Anno di costruzione:
1970
Riscaldamento:
Autonomo
Tipo impianto:
A radiatori
Tipo alimentazione:
Metano

Ti interessa visionare l'immobile?

Fissa un appuntamento  Fissa un appuntamento

Richiedi informazioni

Clicca su Leggi per aprire l'informativa
* Questi campi sono obbligatori

Calcola il tuo mutuo

Semplice e senza impegno
Anticipo

( % )
Mutuo

( % )

pochi semplici passi

inserisci i tuoi dati
Questionario completato
Grazie per aver richiesto un appuntamento senza impegno con un nostro Consulente del Credito e Assicurativo.

Hai inserito correttamente tutti i dati necessari e a breve riceverai una e-mail con un link da convalidare per inviare i tuoi dati.
Affiliato
Immobiliare Dolcevita Srl
Viale Regina Elena, 7/B 47900 Rimini (RN)

Il nostro staff


  • Rossella Caruso
    Collaboratrice

  • Giulia Clara Galieni
    Coordinatrice

  • Ilvi Rushani
    Collaboratore

  • Thomas Vitillo
    Affiliato
Viale Regina Elena, 7/B 47900 Rimini (RN)
Zona: Tripoli
Mostra su mappa
Orari: Dal Lunedì al Sabato: 9-13 e 15.00-19.30
Affiliato
Immobiliare Dolcevita Srl
Viale Regina Elena, 7/B 47900 Rimini (RN)

2026 Tecnocasa Franchising S.p.A. - P. IVA 08365160152 - Via Monte Bianco 60/A 20089 Rozzano (MI). Ogni agenzia ha un proprio titolare ed è autonoma. Privacy policy | Policy utilizzo | Cookie policy